| 価格 | 4,999万円 ![]() |
||||
|---|---|---|---|---|---|
| 所在地 | 東京都日野市三沢5丁目
この地域周辺の物件を見る |
土地面積 | 139.16m² (42.1坪) | 建物面積 | 103.71u |
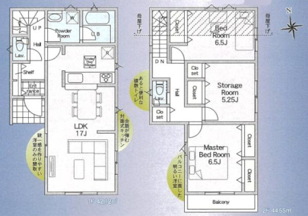
| 築年月 | 2025年10月築 | 間取り | 4LDK (LDK22.3/洋室7.3/洋室5.7/洋室5/洋室4.5) | ||
| 交通 |
多摩都市モノレール 程久保 徒歩7分
京王線 高幡不動 徒歩14分 |
||||
電話をかける(携帯・PHS可)
042-519-6051
「ホームページを見た」とお伝え下さい。
お問い合わせ番号をお伝えください
RHS-175601-5871
| 特徴 |
|
|---|---|
| セールスコメント | - |
| 採光面 | 南 | 構造/階数 | 木造/地上2階建 |
|---|---|---|---|
| 建ぺい率 | 40(%) | 容積率 | 80(%) |
| 駐車場 | 有 | 現況/引渡し | 新築/即時 |
| 土地権利 | 所有権 | 私道負担面積 | - |
| 接道状況 | 接道: 東 公道 道路幅: 6m | 用途地域 |
第一種低層住居専用地域
|
| セットバック | - | 法令上の制限 | 高度地区;景観法;航空法;宅地造成工事規制区域;高さ最高限度有;日影制限有 |
| 地目 | 宅地 | 地勢 | 傾斜地 |
| 建築確認番号 | 第25UDI1W建00473号 | 都市計画 | 市街化区域 |
| 取引態様 | 仲介 | ||
| 情報更新日 | 2025年11月17日 | 次回更新日 | 2025年12月01日 |
| 小学校区 | 日野市立夢が丘小学校 (東京都日野市) この学区の他の物件を見る |
中学校区 | 日野第三中学校 (東京都日野市) この学区の他の物件を見る |
|---|
電話をかける(携帯・PHS可)
042-519-6051
「ホームページを見た」とお伝え下さい。
お問い合わせ番号をお伝えください
RHS-175601-5871
| 価格 | 万円 | ||
|---|---|---|---|
| 年利率 | % |
||
| ボーナス払い | 返済年数 | ||
| 頭金 | 直接入力する | 万円 | |

毎月のご返済額 |
ボーナス(×年2回) |
物件価格4,999万円 |
![]() |
![]() |
日野市三沢5丁目
4999万円〜5299万円 |
電話をかける(携帯・PHS可)
042-519-6051
「ホームページを見た」とお伝え下さい。
お問い合わせ番号をお伝えください
RHS-175601-5871
多摩モノレール「程久保」駅まで徒歩7分!
駐車並列2台(車種による)可能!
WIC付きの4LDK!22.3帖の広々LDKに床暖房付き!南面ワイドバルコニー!